Hexagon

Cabinet Vision Software

CABINET VISION makes it simple for furniture, woodworking, or casegood manufacturers of all sizes to play to their strengths, by using a single, fully modular software package to go from design to manufacture. With CABINET VISION you buy only the features you need. This allows you to evolve and grow your software usage in line with your business, making CABINET VISION highly scalable and cost-effective. Enhanced usability makes it even easier to visualise and efficiently perform a full range of tasks, while responding to changing design requirements, whether making high-end bespoke pieces or basic elements. Fast, practical and precise, CABINET VISION excels at rapidly and seamlessly converting designs into all the information you need on the factory floor to manage manufacturing process. And an intuitively simple parametric function means you can capitalise on previous bespoke designs by resizing elements without reprogramming. The result is a faithful reproduction of designs and the reduction of both time-consuming processes and human error. CABINET VISION also enables you to support sales with features that include the production of professional reports that help customers understand and visualise the scope of services as well as the end product.

authorized images

Core Cabinets

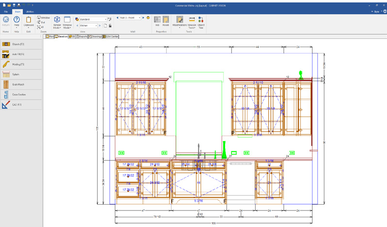
Core Cabinets is one of the central components of CABINET VISION. Intuitively easy-to-use, it allows you to create on-screen three-dimensional presentations of the final product while simultaneously generating the necessary production information for the shop floor.

Production Information

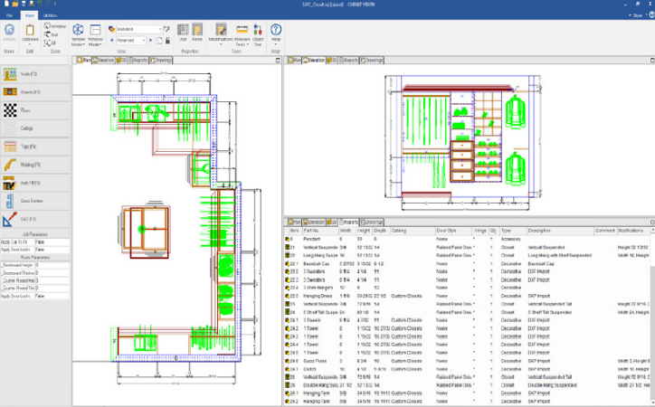
Core Closets

Core Closets is a core element of CABINET VISION, providing you with all the essential tools for manufacturing closets. Designed for ease of use, Core Closets enables the creation of on-screen three-dimensional presentations of the final product while at the same time generating the production information required on the shop floor.

Production Information

Cabinet vision design

CABINET VISION Design supports sales and profitability by creating professional, accurate designs, renderings and pricing estimates. Its interface is easy to use for both simple and complex projects, enabling designers to give customers a true representation of the look and cost of the finished product. CABINET VISION Design comes in three possible configurations, cabinets, closets, or both and lets you draw on a smart catalogue of products and objects so you can consistently design to manufacturers’ standards.

Production Information

X2D CAD

Creating accurately annotated drawings with the x2D CAD multiplier makes it simpler to communicate design intent to architects and contractors. x2D CAD comes with a host of tools and capabilities, including the automatic updating of part information from the live drawing.

Production Information

XBIDDING

Complete control over bidding and estimation The xBidding multiplier is a simple yet powerful tool that accurately generates bid data so that you can put forward bids that are both competitive and profitable. xBidding performs a complex calculation based on the material, labour and other costs of the final engineered product, thereby giving you a clear indication of your room for negotiation on price. The smart bidding system also makes it easy to discuss design changes with customers without having to recalculate bids from scratch.

Production Information

XCOUNTERTOPS

Making countertop construction part of a seamless manufacturing process The xCountertop multiplier is fully integrated with CABINET VISION, making it possible for you to configure countertop construction with the same Assembly Manager interface used for cabinets, closets, and drawers. xCountertop calculates cut lists for countertops, automatically updates manufacturing operations with changes made in design and makes it easy to configure build-up, draw-bolts, dog bones, alignment boring and other machining on your countertops. All while giving you a clear overview of costs.

Production Information

XCRM

Managing business seamlessly with customers, suppliers and contractors The xCRM multiplier makes it easy for you to create and manage your customer contact lists and related jobs. With xCRM it is simple to seamlessly track revisions to customers' jobs, ensuring final products accurately match your customers' expectation while saving time on searches. xCRM's centralised interface allows you and your team to view and access the CABINET VISION jobs you are currently working on so you can deliver projects on time. It is also a powerful tool for sub-contractors who need to track and deliver multiple projects for contractors.

Production Information

XMACHINING

By automatically producing machine ready G-Code for a wide variety of CNC machinery, xMachining takes designs straight from Screen to Machine™ xMachining is the most flexible, powerful and automated CNC software in the woodworking market. Operating with a full range of machines, including CNC routers, drill and dowel, chop saws, panel saws, haunching machines and edgebanders. xMachining has the capability to intelligently programme machinery by analysing part geometry and automatically creating toolpaths, choosing the right tool, and selecting the speed and feed rates. And if you use multiple types of CNC machinery you can rely on xMachining to automate workflows and send the right part, to the right machine, at the right time.

Production Information

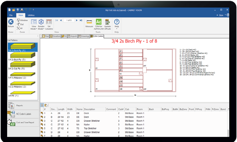
X OPTIMIZER

xOptimizer maximises panel saw yield The Panel Optimizer multiplier is ideal if you are seeking to maximise material yield and reduce waste. It also increases output by eliminating the need to calculate patterns manually. Fully integrated with CABINET VISION, it allows you to quickly and easily convert cut lists into patterns for import directly to an NC panel saw (with the +Saw addition) or to create printed patterns for a manual sawyer. With built-in Offcut Management, the system will instruct the sawyer which offcuts to use from job to job, maximising the use of material.

Production Information

XRENDERING

A photorealistic render that lets customers visualise the final product Customers are much more likely to place orders with you if they can visualise how designs will look once they are built and in use in their home or business. The xRendering multiplier gives you an important competitive advantage by creating photorealistic renderings in minutes, using the latest rendering technology. You can work with your customers to make changes to designs in seconds, whether to floors, wall coverings, countertops, wood species, stain colors, knobs or other hardware. In this way customers can take ownership of designing their dream layout, helping you to drive higher value sales

Production Information

XREPORTING

xReporting gives you access to over 150 predefined reports as well as a custom report editor, making it easy to share clear, concise information with the relevant departments throughout your business. The xReporting multiplier saves time by allowing you to create report groups containing multiple reports that can be printed with a single click. And because it is integrated with CABINET VISION it automatically updates reports when changes are made to the job design or project specifications.

Production Information

XSHAPING

Simplify the shaping of individual parts, including toe notches, cut out around columns, clip and radius corners Not all jobs involve right angles. Wall angles, floor levels and customer preferences can pose irregular shaping challenges. xShaping provides the capability to parametrically shape assemblies, parts, and routes utilising both simple and advanced constraints. xShaping also gives access to the CAM Editor for easily adding operations to parts for machining, such as grommet holes, electrical chases and plumbing cutouts.

Production Information

+LABEL

Ideal for nested-based manufacturing as well as traditional manual and NC panel saws, the +Label addition enables saw and CNC operators to clearly visualise the panel as labels are printed on-demand and placed on parts. You can easily select parts by simply touching the screen and print easy-to-read graphic labels for each part. In addition, the screen is updated automatically to show exactly which parts and panels have been completed. Full label design capabilities gives complete control over the data printed on the label. +Label works in conjunction with xMachining to add bar-codes to each part that requires secondary machining (for example, with a point-to-point or CNC drill and dowel machine), enabling an easy flow from one process to the next. Many newer generation CNC routers and NC saws include their own on-board real-time labeling solutions. Therefore the +Label addition also allows you to design part labels inside xMachining, using all available information, including an image of the part. These labels are then converted to image files which can be printed in real-time using the CNC router's and/or the saw's built-in labeling system.

Production Information

+ROUTER

The +Router addition makes it easy to nest full sheets of parts including operations such as line boring, dados and drawer guide holes, creating nests for an entire job in seconds. CABINET VISION’s nesting solutions offer superior small part handling. CABINET VISION’s “onion skin and return onion skin” technology for small part handling provides maximum vacuum hold-down while maintaining superior edge finish, as well as machine times up to 50% faster than other comparative nesting solutions.

Production Information

+SAW

The +Saw addition allows you to maximize material yield and reduce waste. Fully integrated with CABINET VISION it makes it simple to quickly convert cut lists into patterns for import directly to an NC Panel saw or into printed patterns for use by a manual sawyer. With builtin Offcut Management the system will instruct the sawyer which offcuts to deploy from job to job, maximizing material utilization. The Panel Optimizer also includes built-in links to nearly all NC saws on the market.

Production Information

+SIMULATION

+Simulation enables you to preview machine operations graphically on screen to ensure that parts will be machined properly. By simulating prior to machining, it can reduce errors and scrapped parts, saving time, materials, and money.

+3RD PARTY CAD IMPORT

The +3rd Party CAD Import addition makes it possible to import cut lists from third party CAD software and layered DXF files to define CNC machining

+3RD PARTY CAM

Interoperability is further strengthened with the +3rd Party CAM addition. This provides the ability to export DXF and other popular formats common to CAM applications for further processing by a third-party CAM solution.

+MATERIAL HANDLING

The +Material Handling addition provides the capability to export to and synchronise materials with material handling systems.

+POINT TO POINT

The +Point to Point addition includes either DXF Output to 3rd party CAM applications or the ability to communicate directly with a CNC Machine using Screen to Machine™, technology from Hexagon's Manufacturing Intelligence division.

+CHOP SAW

With the +Chop Saw addition it is simple to export data to automated fence systems for chop saws.

+DRILL & DOWEL

The +Drill & Dowel addition gives you the capability to export information to drill and dowel machines.

+PART LIST EXPORT

The +Part List Export addition makes it possible to export a PNL, CUT, or Custom CUT file to a preferred optimizer. When using the +Router, +3rd Party CAM, or +Point to Point additions these files will include the programme name for part machining that needs to be performed after cutting.

Get In Touch

Chennai:

Penthouse, Cordell Apartments, 29, Pycrofts Garden Road, Nungambakkam, Chennai – 600034

Rajapalayam

1085B SVPR Road, Cotton market, Rajapalayam- 626117, Virudhunagar District.

contact@janaks.in

+91 77082 99197

+91 89391 66171